The Fallen Church
Chiesa Diruta, a Catholic church from the 15th century, was originally built to serve the local community of clergymen and gradually became one of the most important churches in the bishopric. Over the centuries it has been heavily damaged by earthquakes, fires, and construction flaws, leaving it in its current unfinished state, with no roof and a partially collapsed front façade. Today it stands as a powerful ruin in the landscape, clearly in need of a new life, but also asking to be treated with care rather than simply “fixed.” The project responds by proposing a transformation into a concert hall that takes the ruin seriously as a starting point, reactivating Chiesa Diruta as a cultural space for Grottole while keeping its damaged, open condition visible. A translucent metal mesh structure completes the missing façade and envelope, not to hide the ruin, but to frame and underline it as a contemporary layer in dialogue with the old stone shell.
The design begins with a close look at the building’s two dominant characters: the collapsed façade, which exposes vulnerability and loss, and the massive vault at the crossing of the nave and transept, which still shows the strength of the original church. Instead of reconstructing what has disappeared, the project “fills the gaps” with light, reversible elements that respect the existing masonry and allow the ruin to remain legible. Building on the ruin becomes a way of letting past and present stand together: the new structure does not erase history but accepts that the church has changed and may change again, with joints and materials designed so that the additions read as a precise, almost temporary layer.
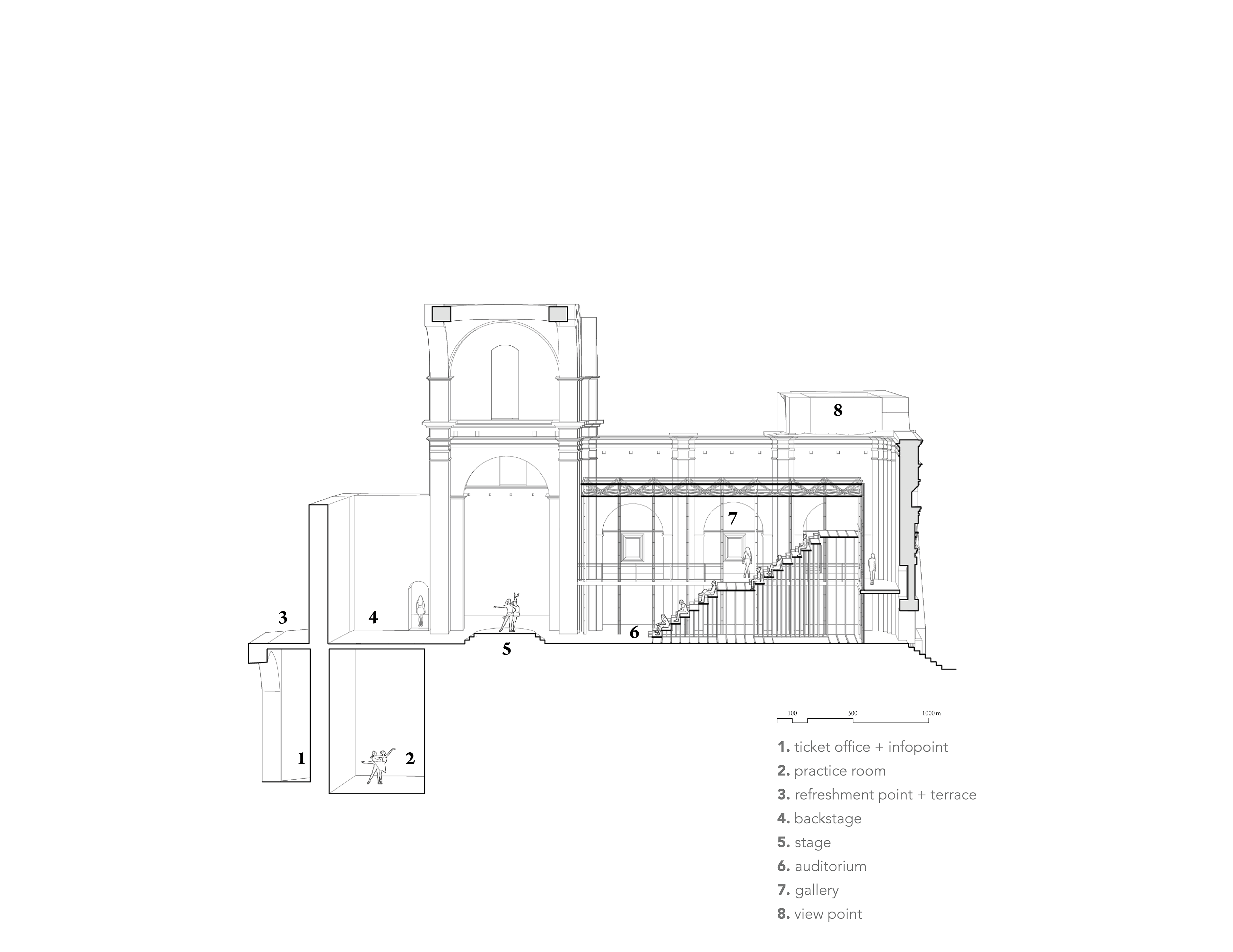
Functionally, the church is reimagined as a concert hall that can host contemporary performances while preserving the spatial drama of the nave. The ground floor becomes the main auditorium, with seating oriented toward a stage that works with the existing geometry, while an upper balcony increases capacity and offers different viewing and listening experiences. Around this core, the project introduces the spaces needed for a working venue—changing rooms, restrooms, cloakroom, ticket point, storage, and backstage—tucked into side zones, thick walls, or clearly added volumes so they do not overwhelm the primary reading of the ruin. Visitors enter through the new mesh layer and move from the openness of the exterior into the more focused interior of the auditorium, experiencing shifts in light, sound, and enclosure that make the building’s history, present use, and future possibilities tangible along the way.

Image (Above): A perspective view into the viewing point of the fallen church

Image(This Page): A sectional perspective view of the arches repurposed as exhibition zones

Images (Next Page): The fallen church plans of three floors after the intervention

Images (Above): Axonometric view of the fallen church showing the process of  the refunctioning

Images (Above): The depictions of the complex demonstrating various perspectives within the fallen church

Images(Above): Sections demonstrating the rehabilitation and refunctionalization of the fallen church
Back to Top